
The upper level of Philip Brophy’s house. Photograph by Laura Banfield.
Philip Brophy’s House
by Felix McNamara and James Bowman Fletcher
Philip Brophy is an artist defying straightforward disciplinary or medium-specific categorisation. An overly straightforward categorisation of this anti-categorical quality might link Brophy to the New York No Wave scenes that emerged, as he did, in the late 1970s, and the broad label of “artist-writer,” often attributed to No Wave associate Dan Graham, might also loosely fit Brophy. A brief biographical sketch of Brophy should point out his involvement with the art and music collective → ↑ → (or Tsk Tsk Tsk) and his feature film Body Melt (1993), co-written with Rod Bishop, an exemplary “body horror”—a term Brophy coined in the article Horrality: The Textuality of the Contemporary Horror Film (1983)—and one of Quentin Tarantino’s favourite Australian films of the 1990s, where you get to see Harold from Neighbours (1985-2025) shoot himself in the head through the chin, which is not the method that Hitler recommends in the 2004 film Downfall. He suggests that through the mouth is better, also through which, in Body Melt, a woman chokes on her own giganticised tongue, thanks to the pharmaceutical tyranny that Harold from Neighbours nurtures. Memo (art) readers will be familiar with Philip’s frequent reviews over the last ten years, and a collection of his post-2000 essays was published in 2024, titled Screenic: Politicised Writings on Being Screened. One of his previously unpublicised “works” is, however, Brophy’s home on Wurundjeri Country (North Melbourne), a two-storey industrial building he has modified, lived in, and worked in since the late 1990s.
His journey to this all-night cleaning service-turned-home is told with reference to two major previous living and working spaces shared with his then-partner Maria Kozic, with whom he collaborated on many projects, including → ↑ → throughout the 1980s and early-to-mid 90s. The first of these was a tenancy above a sandwich shop in High Street, Northcote, in its heyday as Melbourne’s drug-trade Silk Road. The neighbourhood was lively: a Yugoslavian axed his wife to death, kid shoplifters were shot-gunned, and firebombings were commonplace. When the sandwich shop below Philip and Maria was also firebombed by the shop-owner’s sons (whose dumbass homejob arson failed to burn up the artist couple’s synthesisers upstairs), they decided to move to a commercial tenancy on Oxford Street in Collingwood, in one of the former Foy and Gibson factory buildings, before they were all split up, strata titled, and fitted out by architects.

The upper level of Philip Brophy’s house, with his couch in the foreground and desk in the background. Photograph by Laura Banfield.
The romantic collapse of work and living spaces, as expressed in these previous settings, is also at play in where Brophy lives now, which we will get to in a moment. While contemporary discourse on “work-life balance” tends to deny that anything but a harsh bifurcation of work and life can be argued for, these spaces all made utopian yet highly practical claims on real estate in the era of deindustrialisation, when no one (or very few) knew that, in the coming decades, property at any scale would be converted into a form of speculative crypto-currency. Andy Warhol’s The Factory (1964–1987) is an obvious, well-known corollary to these Philip and Maria spaces, but so too are the living-working-art-installed spaces of Donald Judd, such as his home and studio, 101 Spring Street (1968–1994), in a five-level cast-iron building in New York. Warhol and Judd didn’t agree on much, but they lived and worked in spaces with others, with little spatial separation between work and life. Although superficially similar, this is quite different from developers and real estate agents incorporating “loft living” into their vocabulary, which, unlike The Factory and 101 Spring Street, maintains a conventional, conservative separation between working and living.

A film still from Philip Brophy’s feature film Body Melt (1993), depicting the satirical “Pebbles Court” in “Homesville”; the court featured in the film is actually in Hoppers Crossing on Bunurong and Wadawurrung Country.
An aversion to suburbia—arguably, one of the most severe life-work separations—runs through Brophy’s work and his current home. Suburbia is also one of Body Melt’s primary satirical targets, with its characters living in detached suburban villas in the fictional “Pebbles Court” in “Homesville.” Little of where and how he lives and works now can be associated with some kind of suburban ideal, which began early in Australia’s colonial history, with various recognisable types and lifestyles still present today, such as commutes, fitness fads, and the miniaturisation and fragmentation of communal types into the private rooms of a house (home-bars, the backyard pool, and the home-theatre, are all examples). This meant that when Brophy was looking for somewhere to live, he wasn’t looking for a house.
When he acquired the two-storey industrial building that is now his “house” (more precisely, where he lives and works), it had been occupied by a commercial cleaning company that was busy serving the 1990s tenants of Melbourne’s Central Building District. The upper level was almost entirely partitioned—floor-to-suspended-ceiling—into separate offices for the company’s administrative staff. The suspended ceiling spanned this entire level, concealing the roof’s steel trusses. Most partitions were glazed, borrowing light from corridors and adjacent offices, while some had skylights. Mid-olive green carpet covered the timber board flooring, which sat on beams that eventually rested on the brick perimeter walls. This means a suspended-ceiling, partitioned, administrative-space, carpet sandwich entirely concealed what was above the ceiling lining and below the carpet lining. The lower level, with almost twice the ceiling height of the upper, was filled from front to back with vans and cleaning equipment, and you could drive straight through it across its concrete slab.

The upper level of Philip Brophy’s house, looking towards the bedroom, with the kitchen beyond. Photograph by Laura Banfield.
Since the 1990s, Brophy has extensively modified the building, but he has no formal architectural training. As a further sidenote to his anti-categorical quality, although architects may want to deny it, their aesthetic sensibilities, especially to others who are not architects, seem conditioned. Quite a bit has been written about the indoctrination in architectural education settings. This is apparent whenever a first-year student’s tastes and dispositions change to the point that family members no longer recognise (or understand) what they say about a nondescript building at the end of their street or the clothes they wear by second or third year, let alone their fifth and final year. This is not only indoctrination, but it is also a kind of integration and literacy about how architectural things look and how those architectural-looking things can be discussed. This is why, when those without any architectural training choose to do something an architect might do, like renovate something, they often produce work that is hard for architects to say much about. Not only can this kind of work often look unlike what is readily associated with architectural “culture” and its “styles,” but these non-indoctrinated ones also live, consciously or not, in their works quite differently from how an indoctrinated architect might project how they might live. This house is an example of both.

The front door and entrance stairs. Photograph by Laura Banfield.
When we spoke to Brophy, he expressed ongoing frustrations whenever the topic of what he was doing to his house came up. He found himself telling tradespeople and anyone involved in construction or architecture that he didn’t want anything renovated, upgraded, or improved; he just wanted things repaired. This notion of repair is distant from architectural notions, more entrenched and more contemporary. There is no origin point selected for this house to repair toward. The existing industrial conditions were not essentialised (often conflated with respecting) as an origin to which to repair back towards. As Brophy repaired things, he also changed them quite a lot from any notion of an “original” condition. The exterior of the house shows this well: it has lost (without issue in terms of Brophy’s intentions) some of its identifying industrial paraphernalia during the modifications, such as the front roller door and most of its “original” steel windows.

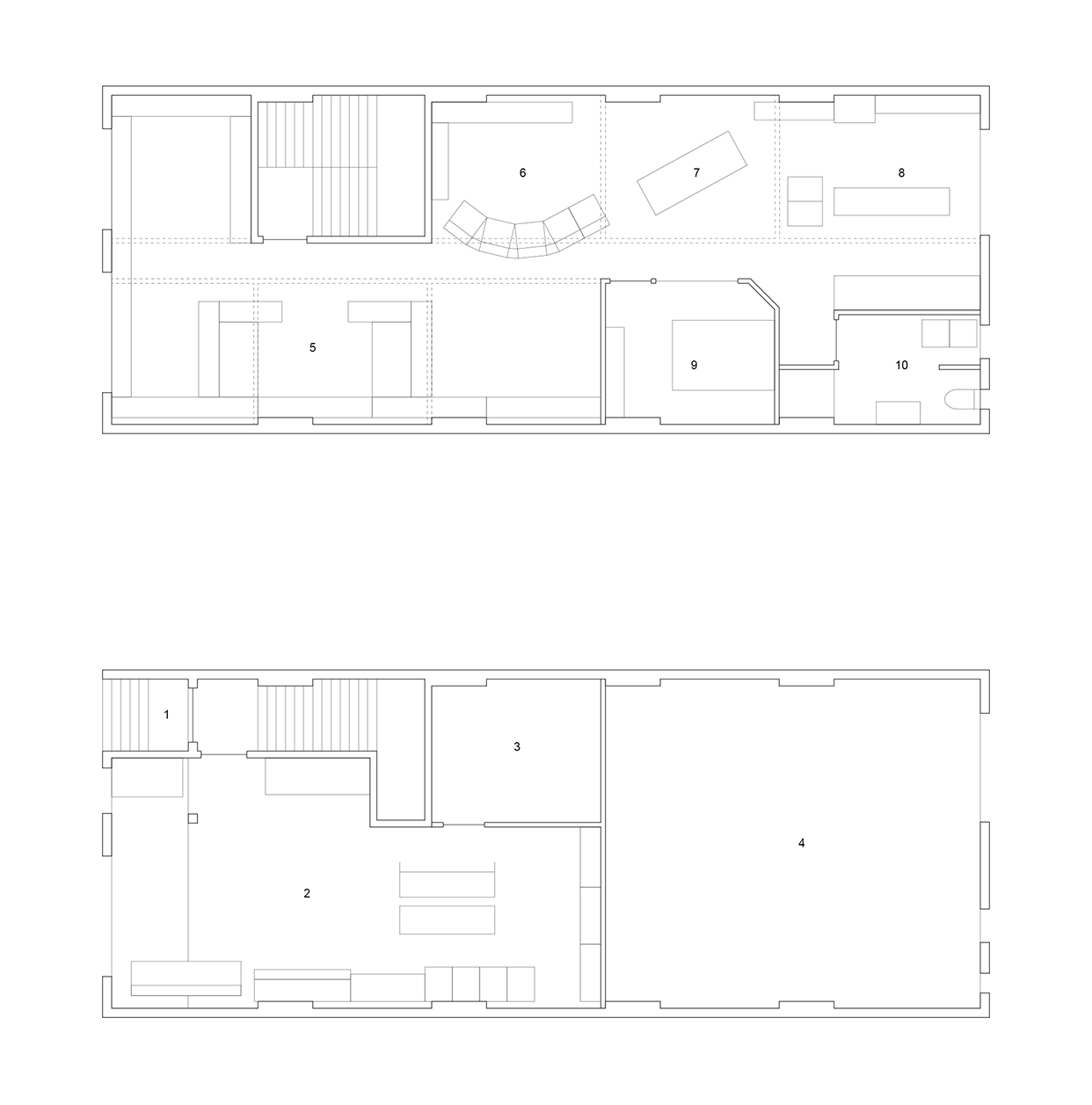
Upper level (top) plan with the existing partition walls shown with dotted lines and lower level (bottom) plan showing the entrance (1), large room (2), recording studio (3), art studio (4), desk area (5), “living” area (6), dining table (7), kitchen (8), bedroom (9), and bathroom (10). Indicative drawing by the authors.
On the upper level, all office partitions have been removed, except one, which encloses the only bedroom. The office’s portion is oddly similar to a contemporary second bedroom (not like a master bedroom). Adjustments were made to the layout of the existing plumbing and bathrooms, and a kitchen area was expanded. The existing suspended ceiling has been retained. No trusses were exposed. The resulting single open room, left over from removing the partitions, runs from front to back and includes multiple desks for computer-based work, a large curved couch facing a television, a dining table, a bedroom, a kitchen, and a bathroom. The single bedroom mentioned earlier is located almost in the middle of this large open room. The desk with Brophy’s computer is quite close to the couch, and the ever-present open storage of his collections of music, film, and manga lines the perimeter of the entire floor, encroaching at times into the middle of the large room. There are many film posters: Doris Wishman’s Let Me Die a Woman (1978) and David Keith’s The Curse (1987) below the dining area’s air-conditioner, Robert Vincent O’Neil’s Angel (1984) and William Castle’s El caso de (Straight-Jacket) (1964) above the television, and Renny Harlin’s A Nightmare on Elm Street 4: The Dream Master (1988), Randall Hood’s Die Sister, Die! (1978), Charles Band’s Parasite (1982) and Gary Sherman’s Dead & Buried (1981), among others, in the bedroom. These posters are distributed throughout the house in a more or less consistent manner, ignoring programmatic separation or functional zoning; Brophy cycles them annually, with approximately 15 years’ worth waiting to be hung. His work—from the literal desk he works at through to the artefacts entangled in his work—is more a part of this interior than something banished from it.

A closer view of the retained partitions that now enclose the bedroom with the retained mid-olive green paint. Photograph by Laura Banfield.
Like the posters, the colours and material treatment are consistently distributed rather than functionally separated. Brophy appropriated and retained the painted colour of the existing framing on the office partitions (mid-olive green), including it in a new seven-part colour scheme that runs throughout the upper level (mid-olive green, white, pale pink, pale green, an almost pastel red and purple, and a vibrant red). These colours are used almost exclusively as painted finishes, coloured back glass, laminates, and rubber flooring. When we asked about the colours, he expressed a distaste towards the “Natural”, or the attempts to capture “Natural-ness” in something like a material. This is also apparent in the furniture, which is mostly made of synthetic materials and plastics. Between the posters (and the films and genres they depict), the colours, and their appeal to a “dishonesty” in some inherent material, there is a shared and circular maximalism and polychromatism. He even noted his ongoing regret at sanding and polishing the floors (the most familiar domestic finish on the upper level) rather than painting them entirely.

The upper-level bathroom. Photograph by Laura Banfield.
On the lower level, partitions have been added to the single open room, not removed, creating a recording studio and splitting the area into two, with art studios at the rear with their own entrance. The existing enlarged industrial roller door has been removed, while the crossover remains in the footpath. This lower level is not just for its owner; other artists have worked here for decades. These spaces are not just for Brophy’s work and life separated from others, a domestic ideal found elsewhere; they also allow his work to be with others in his house.

The lower level, with a recording studio and a studio beyond. Photograph by Laura Banfield.
Everyone seems pretty interested in housing at the moment, mainly due to various interpretations of its crisis. However, a house like this isn’t the one that seems to be on architects’ and planners’ minds when they propose replicable, systematic (yet often idealistic) solutions to the crisis, with their focus on distributions of bedroom-numbered apartment types, desired density, and an appropriate scale of development. These solutions, placed next to certain houses, like this one, are difficult to reconcile. That’s why we tried our best to understand Brophy’s house, architecturally.
Felix McNamara is a writer. He teaches at the Melbourne School of Design and substacks at Corporate Total Art. James Bowman Fletcher is a practising architect and lecturer in the Department of Architecture at Monash University. Both Felix and James are contributing editors of Memo Architecture.



